模型详情
1/4
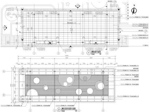
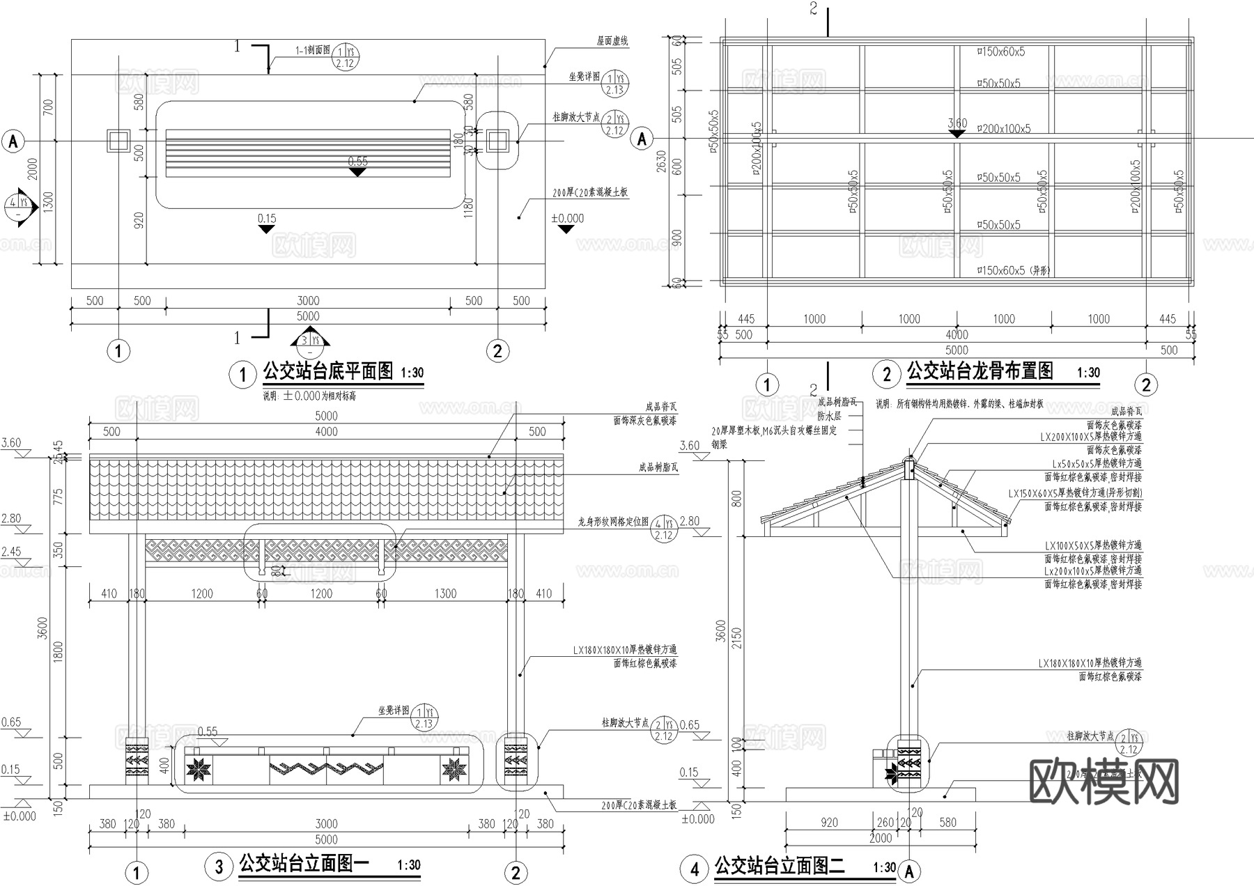
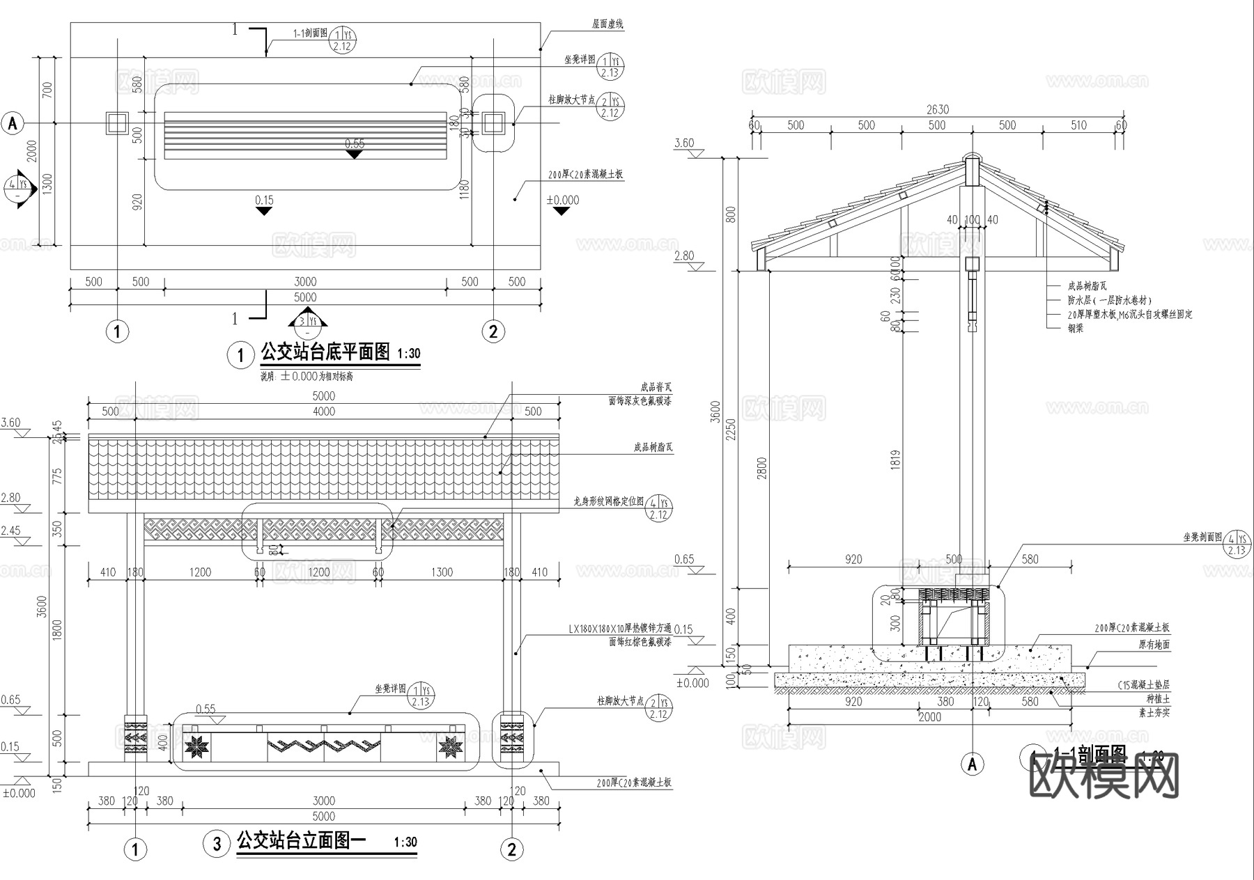
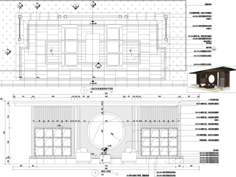
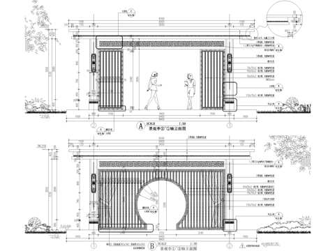
中式廊架 仿古建公交车站台 亭子 单臂钢结构廊架 坐凳柱脚cad施工图
ID:
5413969
中式廊架 仿古建公交车站台 亭子 单臂钢结构廊架 坐凳柱脚cad施工图 ID-5413969
所需欧币:
16
发布时间:
2026-02-24
下载请使用电脑登录欧模网,建议先收藏
收藏
分享
皮肤干燥
关注
为您推荐
单臂钢结构休闲廊架坐凳景观节点详图CAD施工图cad施工图
单臂木廊架cad施工图
现代玻璃廊架 钢结构廊架 会客厅坐凳cad施工图
廊架 四角亭景观亭子 玻璃廊架 钢结构廊架cad施工图
新中式廊架 钢结构玻璃廊架 铁艺廊架四角亭子 景观廊亭凉亭cad施工图
新中式廊架 钢结构廊架 玻璃廊架 风雨廊架会客厅cad施工图
廊架 四角亭子景观亭 钢结构廊架 格栅cad施工图cad施工图
白色单臂钢结构休闲廊架景观节点大样详图CAD施工图cad施工图
新中式玻璃廊架 风雨连廊 钢结构廊架 文化长廊 宣传栏坐凳cad施工图
现代弧形廊架 钢结构廊架 异形廊架 风雨长廊cad施工图
新中式廊架 景观亭四角亭子 钢结构廊架 格栅链接射灯cad施工图
现代弧形廊架 钢结构廊架 异形廊架 景墙长廊cad施工图
现代异形廊架 弧形廊架 钢结构廊架 风雨连廊cad施工图
新中式单臂木廊架风雨连廊广告牌宣传栏防腐木坐凳cad施工图
新中式廊架 景观亭四角亭子 玻璃廊架 木廊架 格栅cad施工图
现代玻璃廊架 钢结构廊架 会客厅格栅隔板cad施工图
异型休闲廊架坐凳景观节点CAD施工图+SU模型cad施工图
廊架cad施工图
雨棚 钢结构雨棚 入口廊架顶棚 遮阳棚cad施工图
中式仿古建筑 阁楼亭子廊架连廊 三层重檐歇山顶cad施工图
点击加载更多
分享到
复制链接
保存海报
取消
请选择收藏夹
+新增收藏夹
新增收藏夹
取消
确认
退出查看