模型详情
1/3
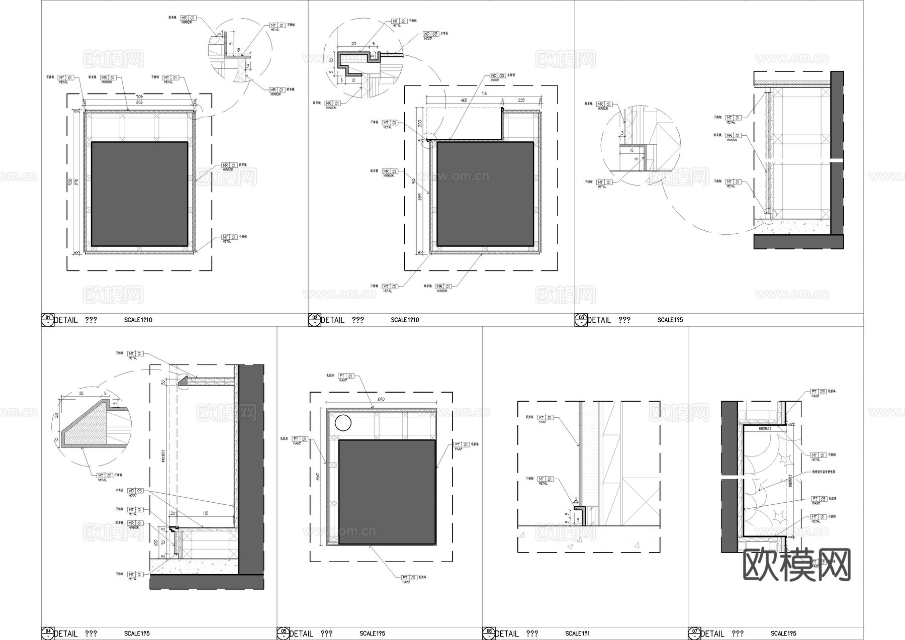
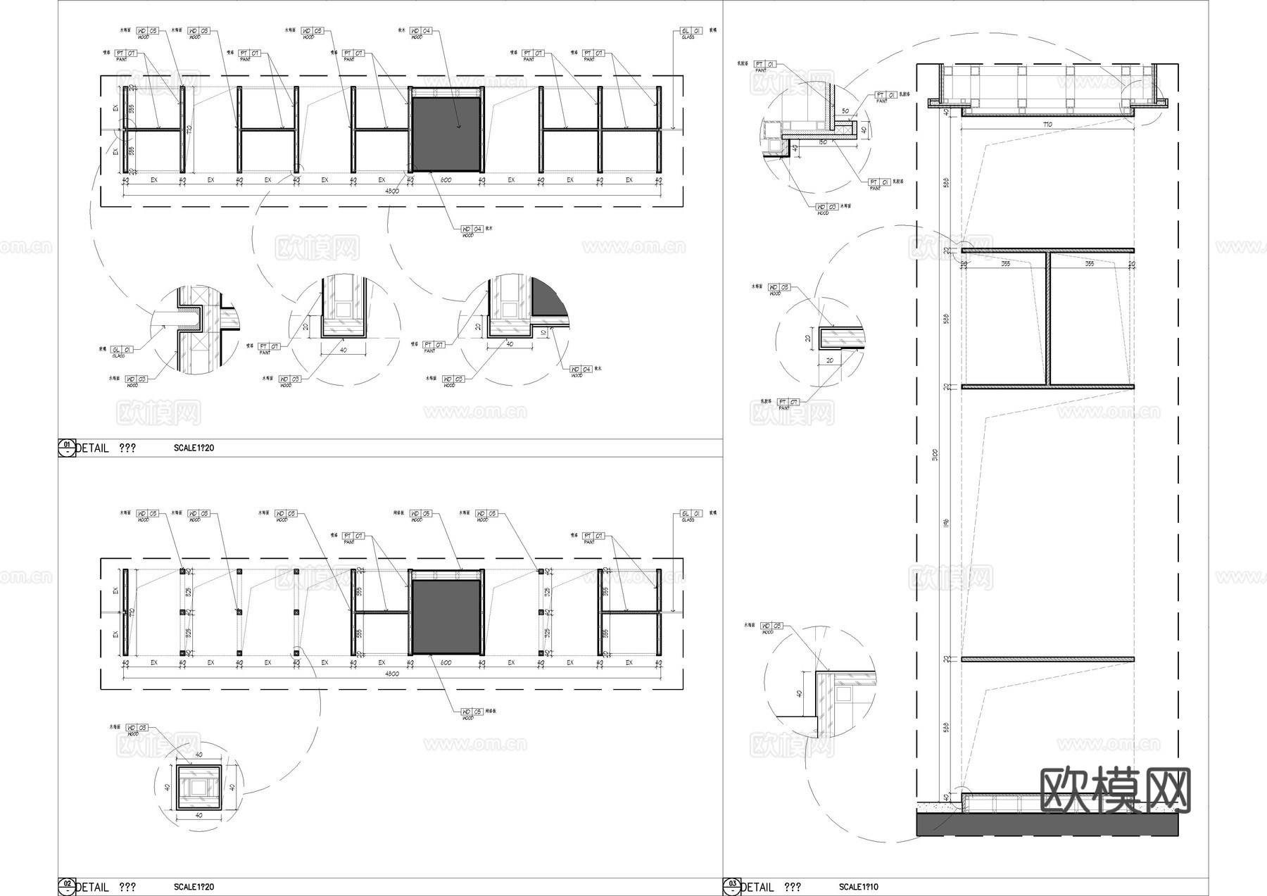
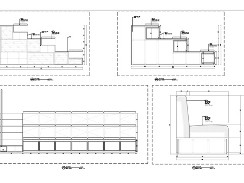
包柱隔断柜节点大样图cad施工图
ID:
5449526
包柱隔断柜节点大样图cad施工图 ID-5449526
所需欧币:
36
发布时间:
2026-03-17
下载请使用电脑登录欧模网,建议先收藏
收藏
分享
疾风之剑
关注
为您推荐
发光铝单板包柱节点CAD施工图cad施工图
玄关隔断柜子节点cad施工图
玄关隔断柜子节点cad施工图
软包卡座节点大样图cad施工图
硬包节点 墙面硬包节点cad施工图
包防火卷帘节点cad施工图
大堂立柱装饰柱联体柱节点大样CAD施工详图集cad施工图
包柱发光柱大理石柱子铝板圆柱石材柱剖面详图节点CAD素材图库cad施工图
门立面节点大样图库cad施工图
梯级坐凳节点大样图cad施工图
高架地板节点大样图cad施工图
铝板幕墙铝塑板包梁包柱玻璃幕墙铝方管剖面详图节点大样CAD素cad施工图
工装节点大样图地面墙面墙身软包剖面详图节点工艺图CAD素材图cad施工图
成品门隔断节点大样图cad施工图
咖啡吧台节点大样图cad施工图
门竖剖节点大样图cad施工图
金螳螂欧式罗马柱式节点工艺做法CAD施工图集cad施工图
驳岸自然堤岸节点大样图CAD素材图库cad施工图
500个天花吊顶节点CAD大样图合集cad施工图
墙面节点 硬包墙面 背景墙大样图 现代沙发背景墙cad施工图
点击加载更多
分享到
复制链接
保存海报
取消
请选择收藏夹
+新增收藏夹
新增收藏夹
取消
确认
退出查看