模型详情
1/4
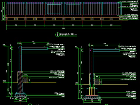
非常好的庭院廊架 休闲区 钢结构木架详图cad施工图
ID:
4062171
非常好的庭院廊架 休闲区 钢结构木架详图cad施工图 ID-4062171
所需欧币:
16
发布时间:
2025-03-18
下载请使用电脑登录欧模网,建议先收藏
收藏
分享
小伊
关注
为您推荐
单臂钢结构休闲廊架坐凳景观节点详图CAD施工图cad施工图
现代弧形廊架 钢结构廊架 异形廊架 风雨长廊cad施工图
白色单臂钢结构休闲廊架景观节点大样详图CAD施工图cad施工图
现代弧形廊架 钢结构廊架 异形廊架 景墙长廊cad施工图
现代异形廊架 弧形廊架 钢结构廊架 风雨连廊cad施工图
新中式廊架 钢结构廊架 玻璃廊架 风雨廊架会客厅cad施工图
廊架 四角亭景观亭子 玻璃廊架 钢结构廊架cad施工图
廊架 四角亭子景观亭 钢结构廊架 格栅cad施工图cad施工图
现代玻璃廊架 钢结构廊架 会客厅坐凳cad施工图
现代叶子造型景观钢结构构架详图cad施工图
现代玻璃廊架 钢结构廊架 会客厅格栅隔板cad施工图
单臂弧形格栅钢结构文化廊架cad施工图
中式特色景观廊架构件CAD施工详图cad施工图
园林景观休闲廊架大样详图CAD施工图集 55套cad施工图
雨棚 钢结构雨棚 入口廊架顶棚 遮阳棚cad施工图
新中式廊架 钢结构玻璃廊架 铁艺廊架四角亭子 景观廊亭凉亭cad施工图
钢结构LED显示屏剖面做法工艺详图节点CAD素材图库cad施工图
楼梯大样图钢结构楼梯详图圆弧楼梯详图CAD素材图库cad施工图
车库入口廊架构架节点大样详图CAD施工图cad施工图
车库入口廊架构架节点大样详图CAD施工图cad施工图
点击加载更多
分享到
复制链接
保存海报
取消
请选择收藏夹
+新增收藏夹
新增收藏夹
取消
确认
退出查看