模型详情
1/4
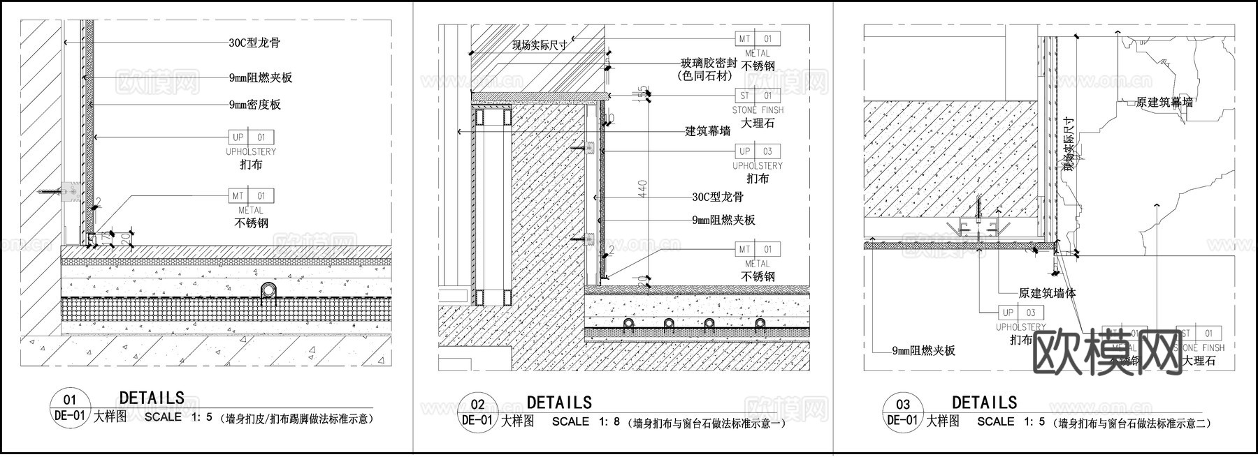
不锈钢窗户 卧室窗台 石材窗台 墙身与窗台做法节点cad施工图
ID:
5209868
不锈钢窗户 卧室窗台 石材窗台 墙身与窗台做法节点cad施工图 ID-5209868
所需欧币:
36
发布时间:
2025-12-04
下载请使用电脑登录欧模网,建议先收藏
收藏
分享
妮子1973
关注
为您推荐
窗台节点图 烤漆板窗台 客厅窗台 厨房窗台cad施工图
瓷砖窗台做法cad施工图
石材与窗台节点 地面节 地坪石材通用节点 客厅地坪节点cad施工图
2026年最新飘窗坐垫飘窗靠垫窗台垫CAD图库cad施工图
石材地面做法cad施工图cad施工图
墙面石材干挂做法cad施工图
室内外石材干挂做法CAD施工图,墙面阴阳角消火栓干挂石材节点cad施工图
欧式窗户节点大样详图CAD施工图cad施工图
欧式窗户节点大样详图CAD施工图cad施工图
别墅屋顶做法cad施工图
采光井做法CAD施工图cad施工图
景观地面做法cad施工图
庭院广场园路台阶做法 石材台阶 木平台做法详图cad施工图
石材吊顶节点cad施工图
石材干挂包柱标准做法cad施工图
35套景观园林道路地面铺装标准做法节点详图CAD施工图cad施工图
泳池石材铺装 游泳池驳岸做法 泳池排水 泳池地面节点cad施工图
钢架玻璃雨棚做法cad施工图
景观地面做法详图cad施工图
墙面通用做法CADcad施工图
点击加载更多
分享到
复制链接
保存海报
取消
请选择收藏夹
+新增收藏夹
新增收藏夹
取消
确认
退出查看