模型详情
1/1
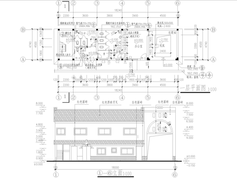
轻轨车站 城轨站 轨道交通站 轻铁站 有轨车站cad施工图
ID:
5444114
轻轨车站 城轨站 轨道交通站 轻铁站 有轨车站cad施工图 ID-5444114
所需欧币:
36
发布时间:
2026-03-16
下载请使用电脑登录欧模网,建议先收藏
收藏
分享
海量CAD素材库
关注
为您推荐
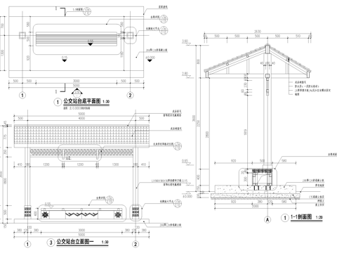
公交车站候车亭CAD施工图集cad施工图
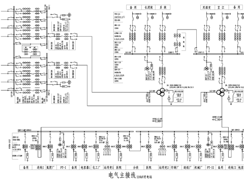
变电站安装施工cad施工图
动力车间空压冷冻站循环冷却水站工业建筑CAD施工图集cad施工图
垃圾中转站 垃圾分类站 废品回收中心 环卫回收点 废物处理站cad施工图
医院 护士站 服务咨询台cad施工图
方城收费站景观绿化平面图CAD施工图cad施工图
环卫所 垃圾站 办公大楼最新全套施工图cad施工图
二层动力站车间厂房工业建筑CAD施工图cad施工图
八层军事供应站军供服务楼室内工装CAD施工图整套cad施工图cad施工图
变电站 电气主接线图 系统图cad施工图
中式廊架 仿古建公交车站台 亭子 单臂钢结构廊架 坐凳柱脚cad施工图
公共厕所垃圾站 二层洗手间卫生间cad施工图
轨道灯节点嵌入式格栅轨道射灯CADcad施工图cad施工图
轨道灯 导轨灯 轨道射灯 导轨灯具 轨道照明灯具cad施工图cad施工图
方形轨道灯 矩形导轨灯 方形导轨灯 矩形轨道射灯 方形轨道照cad施工图
开关插座 移动轨道插座面板cad施工图
室内天花吊顶灯槽轨道射灯节点CAD施工图cad施工图
开关插座 面板轨道插座 单控双控cad施工图
三轮车停靠点 三轮车候车点 三轮车站点 三轮车等候区cad施工图
开关插座 智能面板弱电箱 移动轨道插座cad施工图
点击加载更多
分享到
复制链接
保存海报
取消
请选择收藏夹
+新增收藏夹
新增收藏夹
取消
确认
退出查看